요즘 체류형쉼터 이동식주택 찾는 분들이 정말 많아졌습니다.
오늘 소개드릴 모델은 이동식주택 33㎡(10평)사이즈로, 전국배송(전국설치)가능한 제품입니다.
세컨하우스, 주말주택, 전원생홀, 힐링쉼터 용도로 10평 이동식주택 문의가 꾸준히 늘고 있어요.


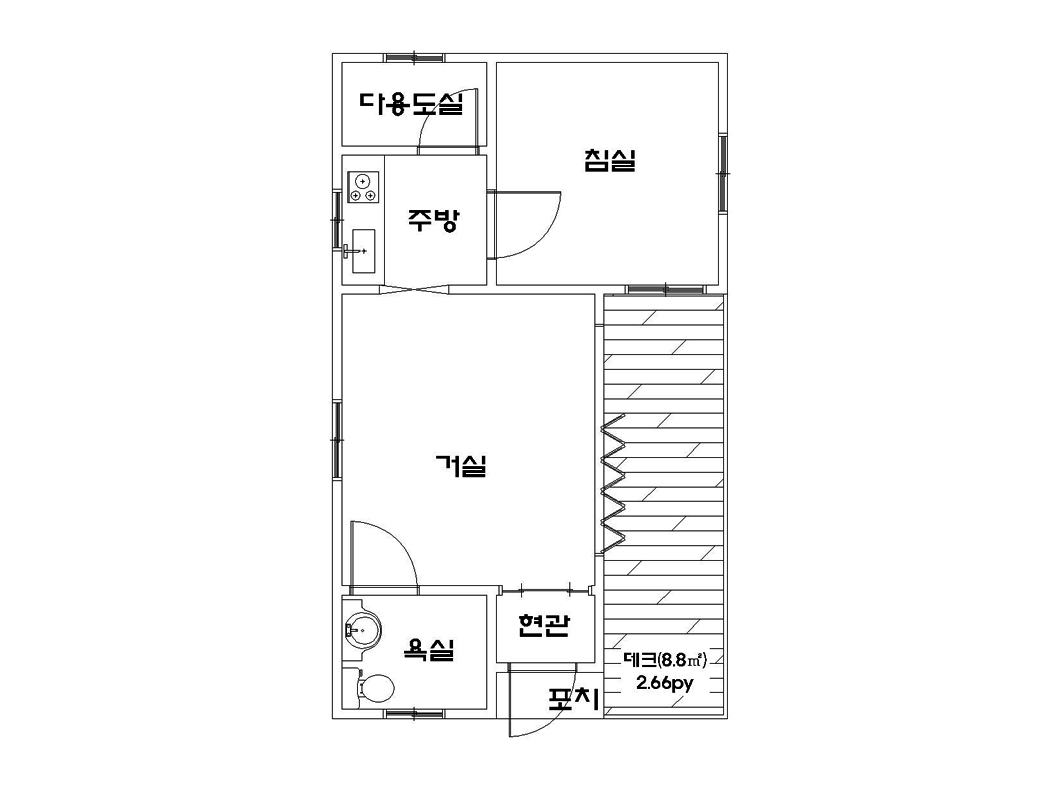
1) 이동식주택 10평(33㎡)사이즈 안내
이 제품은 33㎥(10평) 이동식주택으로 실속형 구성에 맞춘 체류형 모델입니다.
체류형쉼터는 "잠깐 머무는 공간"이 아니라 "생활과 휴식이 가능한 공간"이기 때문에
채광, 동선, 개방감이 중요한데요. 이번 10평 이동식주택은 그 포인트를 잘 살렸습니다.



2) 외장 마감: 써모사이딩 + 블럭사이딩 포인트
외관 디자인은 써모사이딩 마감으로 완성도를 높였습니다.
전체 외장은 써모사이딩 화이트 브라운 투톤색상으로 깔끔하면서도 고급스럽게 마감했고,
일부 구간은 블럭사이딩 포인트를 적용해 단조롭지 않은 입체감과 포인트를 살렸습니다.










3) 폴딩도어 시공 : 체류형쉼터에 꼭 필요한 개방감
이번 체류형쉼터 이동식주택의 핵심은 폴딩도어 설치입니다.
폴딩도어는 실내와 외부 공간(데크/마당)을 자연스럽게 연결해
개방감 있는 이동식주택, 거실 확장 효과, 환기와 채광 개선에 도움을 줍니다.
특히 폴딩도어 이동식주택은
· 날씨 좋은 날 문을 열면 실내가 야외처럼 확장되는 느낌
· 체류형 쉼터의 만족도(휴식감)가 확 올라감
· 감성 연출(카페 느낌)에도 좋아서 선호도가 높습니다.







4) 전국배송/전국설치 가능
이 모델은 전국배송 가능한 이동식주택으로 지역 관계없이 진행 가능합니다.
설치 환경(진입로/크레인/부지 조건)에 따라 안내가 달라질 수 있으니
이도식주택 전국설치 문의 주시면 조건에 맞게 상담 도와드립니다.

5) 이런 분들께 추천드립니다.
· 체류형쉼터 이동식주택을 찾는 분
· 10평 이동식주택, 실속형 세컨하우스를 원하시는 분
· 써모사이딩 투톤 외장 디자인을 선호하시는 분


○내부 인테리어 상세 설명
1)높이 차 설계로 완성한 개방감 있는 거실 인테리어
이번 체류형쉼터 이동식주택은
전면 주택 높이 3.5m, 연동된 뒤쪽 주택 높이 3.1m로
의도적인 높이 차 설계를 적용했습니다.
이 구조 덕분에 실내에서 바라봤을 때
천정이 자연스럽게 위로 열려 보이는 오픈 천정 효과를 주며,
일반적인 10평 이동식주택보다 훨씬 넓고 시원한 공간감을 느낄 수 있습니다.


거실 + 폴딩도어 오픈 컷
폴딩도어를 열면 실내와 야외가 하나로 이어지는 개방형 구조
10평 이동식주택에서도 넓에 보이는 이유입니다.
2)우물천정 + 등박스 간접조명으로 분위기 완성
거실 천정에는 우물천정 구조를 적용하고,
천정 등박스 안쪽에 간접조명(라인 간접등)을 시공했습니다.


거실 전체 전경
전면 3.5m / 후면 3.1m 높이 차 설계로 천정이 높게 오픈된 거실 공간
우물천정과 간접조명으로 체류형쉼터만의 개방감을 완성했습니다.
▶간접등을 켜면 눈부심 없이 은은한 조도 연출
▶낮에는 채광, 밤에는 분위기 있는 힐링 공간
『체류형쉼터, 세컨하우스에 잘 어울리는 감성 인테리어
우물천정 간접조명 이동식주택을 찾는 분들께 특히 만족도가 높은 구조입니다.』
3)현관 공간 : 3연동 슬라이딩 중문 + 붙박이 신발장
현관에는 3연동 슬라이딩 도어를 설치해
실내와 외부를 깔끔하게 분리한 중문 공간을 만들었습니다.
중문 안쪽에는 붙박이 신발장을 시공해
신발, 외출용품, 생활 소품까지 정리할 수 있도록 수납력을 확보했습니다.


현관 중문 공간
3연동 슬라이딩 도어 중문 설치
붙박이 신발장까지 시공해 깔끔한 현관 수납을 완성했습니다.
4)거실 안쪽 욕실 배치로 편리한 생활 동선
욕실은 거실 공간 안쪽에 배치하여
생활하면서 이동 동선이 짧고 편리하도록 설계했습니다.
체류형쉼터는 "실제로 머무는 공간"이기 때문에
욕실 접근성이 굉장히 중요한데,
이번 10평 이동식주택은 실사용을 고려한 동선 설계가 돋보입니다.


욕실 전경
거실 안쪽에 배치된 욕실로 생활 동선이 편리한 구조
실사용을 고려한 체류형쉼터 설계입니다.
5)욕실 인테리어 : 슬라이딩 거울 수납장으로 공간 활용
욕실에는 세면대와 변기 위쪽에
슬라이딩 거울형 수납장을 설치했습니다.
▶거울 + 수납 기능을 동시에
▶세면도구, 생활용품 깔끔하게 정리
▶10평 이동식주택에서도 부족함 없는 수납공간 확보
작은 공간일수록 수납이 중요한데,
이 부분을 세심하게 설계해 실용성을 높인 욕실 구조입니다.

욕실 수납 디테일
세면대·변기 상부 슬라이딩 거울 수납장
10평 이동식주택에서도 넉넉한 욕실 수납공간 확보.
6)주방 구성 + 다용도실 설계
주방에는 기본 싱크대가 설치되어 있으며,
조리와 간단한 생활이 가능하도록 깔끔하게 구성되어 있습니다.



주방 전경
기본 싱크대가 설치된 실용적인 주방 공간
체류형쉼터 생활에 필요한 구성으로 설계되었습니다.
또한 주방 우측 측면에는 다용도실을 별도로 제작해
· 세탁기 설치
· 청소도구 보관
· 생활 잡동사니 수납 등이 가능하도록 했습니다.
→다용도실 있는 이동식주택,
→체류형쉼터 장기 체류 시 특히 만족도 높은 구조입니다.



주방 + 다용도실
주방 옆 다용도실 제작
세탁기, 청소용품 보관까지 가능한 실속형 이동식주택.
7)침실 1개 구성 + 붙박이장 옵션 가능
침실은 독립된 공간으로 1개 마련되어 있어
휴식과 수면에 집중할 수 있도록 설계했습니다.

침실 전경
독립된 침실 1개 구성
붙박이장 설치가 가능한 옵션으로 수납 활용도까지 고려했습니다.

침실에는 붙박이장 설치가 가능한 옵션도 제공되어
수납을 중요하게 생각하시는 분들께 추천드립니다.
▶체류형쉼터 침실 구성
▶세컨하우스 / 주말주택에 적합
▶1~2인 사용에 최적화된 구조
○마무리 안내
이번 모델은 33㎡(10평) 이동식주택 + 체류형쉼터 활용에 최적화된 구조이며,
외장은 써모사이딩 화이트 브라운 투톤 마감에 블럭사이딩 포인트,
그리고 폴딩도어 설치로 개방감과 분위기까지 완성한 제품입니다.
이동식주택 견적 / 체류형쉼터 상담 / 전국배송 설치 문의는 편하게 연락 주세요.