모던한 모듈러 주택 디자인
페이지 정보
작성자 관리자 댓글 0건 조회 1,046회 작성일 26-01-05 16:47본문
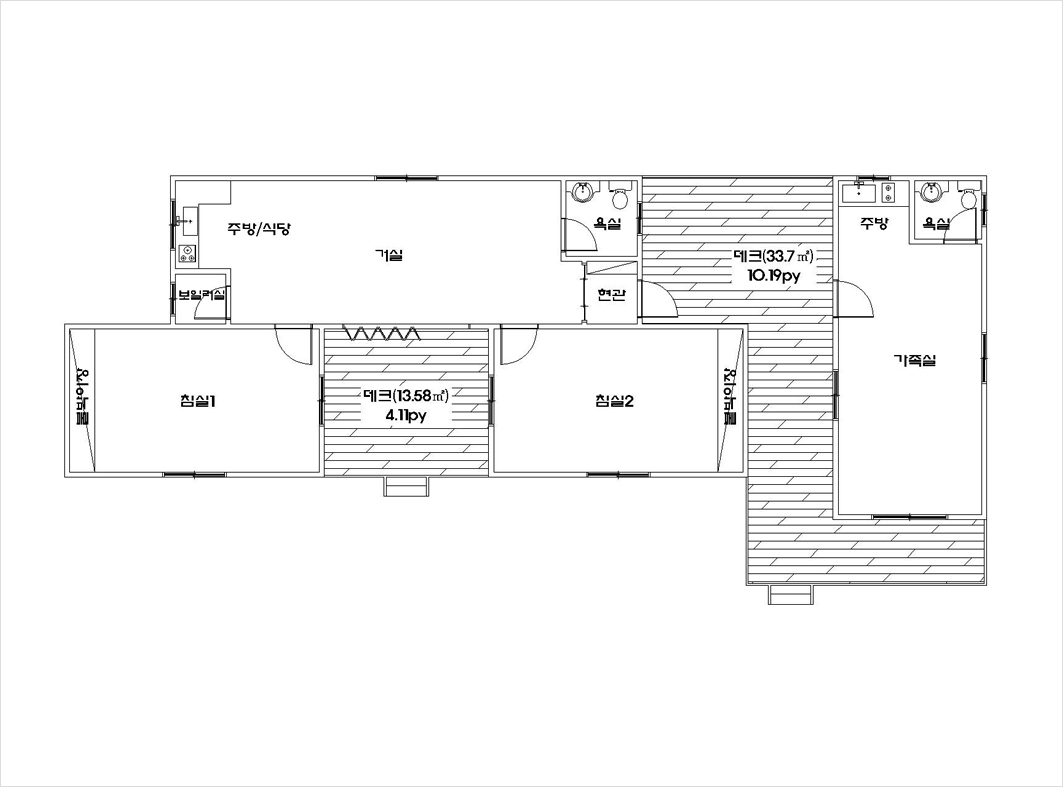
모던한 모듈러 주택 디자인을 소개합니다. 삼우기업해피캠프의 대표 모델로,
가장 많이 시공된 ㄷ자형 연동형 이동식주택을 모던하게 디자인했습니다.
이 집은 24평의 크기로, 가족이 함께 생활하기에 적합한 공간을 제공합니다.


모듈러 주택의 개요
모듈러 주택은 공장에서 미리 제작된 모듈을 조립하여 건설한 집을 말합니다.
이러한 주택은 빠른 시공과 경제성을 자랑하며, 다양한 디자인 옵션을 제공합니다.
또한, 효율적인 에너지 사용으로 친환경적인 장점까지 가지고 있죠.

디자인 요소
ㄷ자형 구조는 공간 활용이 뛰어나고, 각 공간 간의 자연스러운 연결을 가능하게 합니다.



또한, 전면에 설치된 폴딩도어는 데크와의 원활한 연결을 도와줍니다.



이 디자인은 가족이 함께하는 시간을 중요시하여, 거실과 주방이 연결된 오픈형 구조로 되어 있어요.

가족실과 데크의 연결
가족실은 모든 세대원들이 편안하게 쉴 수 있는 공간으로 구성되었습니다.
손님이 방문했을 때도 활용할 수 있는 세컨 하우스 개념으로 설계되었죠.




현관
우측의 메인 현관 출입구를 통하여 실내로 들어가면 신발 수납장과 중문을 설치하여
거실과 현관 공간을 분리해줍니다.


내부 디자인
주택의 내부는 폴딩도어로 자연광이 가득 들어오도록 설계되었습니다.

거실, 주방, 가족실이 자연스럽게 연결되어 있어 넓고 탁 트인 느낌을 줍니다.
주방은 모던한 디자인으로, 기능성과 미적 요소를 모두 고려하여 구성되었습니다.




욕실
욕실은 심플하고 모던하게 시공이 됩니다.
벽면은 욕실용 써모사이딩으로 마감하고 바닥은 타일로 마감합니다.
또한, 세면대와 변기 위에는 선반을 만들어봤습니다.
거울장도 설치하여 공간활용을 최대화했고요.



침실
침실 1.2룸 모두 화이트 붙박이장을 설치하고 우드톤과 화이트 색상의 인테리어로
따뜻한 느낌을 주게 그려봤네요.



가족실
가족실은 모두가 휴식할 수 있는 공간으로,
손님이 왔을 때도 쉴 수 있는 세컨하우스 개념으로 구상했습니다.
ㄷ자형 주택과 가족실은 데크로 연결되어 있어, 편리한 동선으로 만들었네요.



주택의 외관
외관은 화이트와 다크 브라운의 조화로 현대적인 감각을 선사합니다.
또한, 주택 주변에는 다양한 나무와 잔디가 어우러져 자연친화적인 환경을 조성하고 있습니다.




제작 설치 사례 소개
다른 모듈러 주택 디자인도 살펴보면, 각기 다른 스타일과 기능성을 보여줍니다.
예를 들어, 인천 강화도에 제작 설치한 20평 이동식주택,충북 청주에 제작 설치한 20평 이동식주택을
홈페이지 이동식주택 주문제작 페이지에서 보실 수 있습니다.





인테리어




모듈러 주택은 건축의 미래를 바라보는 새로운 시각을 제공합니다.
앞으로도 지속 가능한 건축 솔루션을 찾는 이들에게 매력적인 선택이 될 것이라고 확신합니다.

댓글목록
등록된 댓글이 없습니다.






